首页>信息公开>城市规划公示>项目公示>调整公示
项目名称: 关于三亚红树湾家园项目建筑设计方案设计变更的批前公示
公示开始时间: 2026-01-09 公示结束时间: 2026-01-19
公示来源: 三亚市自然资源和规划局 公示状态:

项目详情

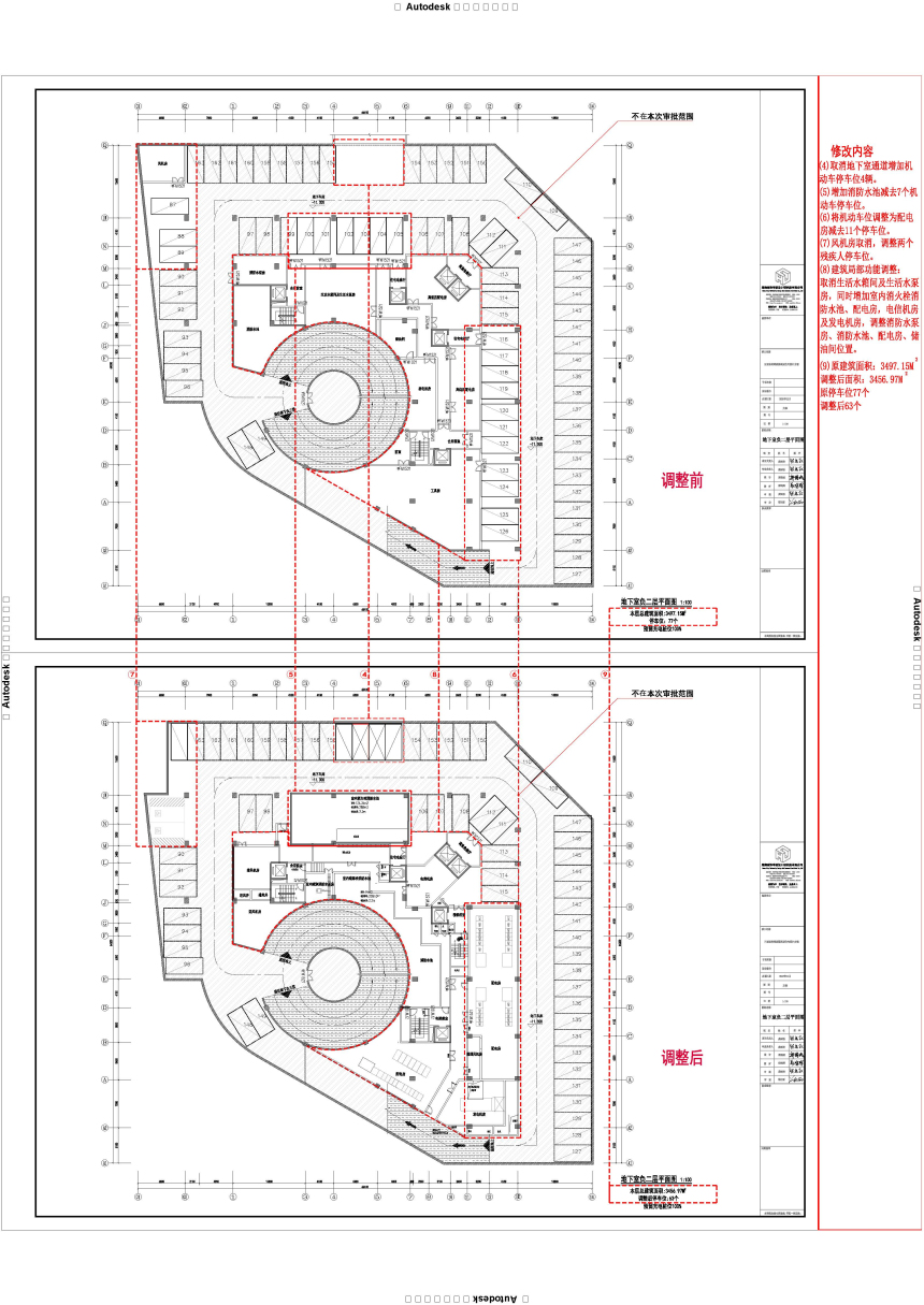
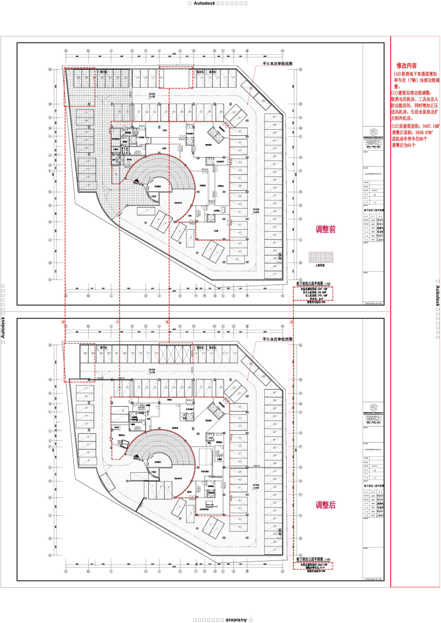
三亚悦信达商务服务有限公司开发建设的三亚红树湾家园项目位于三亚市吉阳区榕根路,现该公司申请在不突破控规指标及满足机动车停车位配建要求的前提下,对该项目建筑设计方案总平面图及地下室平面进行调整。具体如下:

一、调整总平面图景观绿化设计,取消地面14个机动车停车位,增加地下室地面出风井。

二、调整地下室平面。增加地下化粪池,相应减少地下室面积,地下室建筑面积由10491.45平方米调整为10370.91平方米。调整地下室设备用房、停车位等布局,其中地下室停车位由163个调整为154个。

三、上述调整后,项目总建筑面积由25761.69平方米调整为25641.15平方米,机动车停车位数量由原审批的177个调整为154个,其他规划指标保持不变。

根据有关规定,现按程序进行公示征求有关利害关系然意见,公示时间为7个工作日(2026年1月9日至2026年1月19日)。如需听证或对上述变更内容有意见,请于公示结束前反馈,意见反馈方式:

(一)电子邮件请发送到:sy88362336@sanya.gov.cn;

(二)书面意见请邮寄到:三亚市河东路152号,三亚市自然资源和规划局建设工程科,邮政编码:572000;

(三)咨询电话:88271879,联系人:王少彤。

意见反馈请注明联系方式,单位反馈意见并加盖公章。

附件:1.项目区位图

      2.调整前后对比图












扫一扫在手机打开当前页

版权所有@三亚市自然资源和规划局   中文域名:三亚市自然资源和规划局.政务

主办:三亚市自然资源和规划局   开发维护:三亚市营商环境综合服务中心

ICP备案编号:琼ICP备2025053545号    政府网站标识码:4602000050   琼公网安备琼公网安备 46020302000122号