首页>信息公开>城市规划公示>项目公示>批前公示
项目名称: 关于陈土兰在三亚市天涯区马岭社区东二街255号建设私人住宅楼项目的批前公示
公示开始时间: 2026-04-14 公示结束时间: 2026-04-22
公示来源: 三亚市自然资源和规划局 公示状态:

项目详情

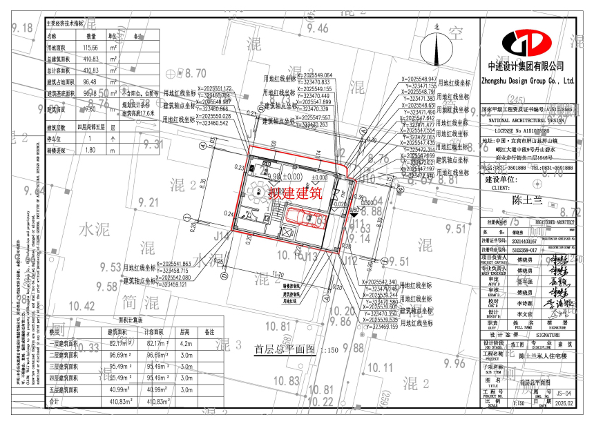
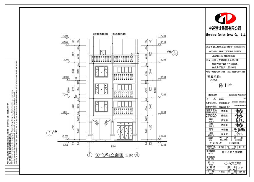
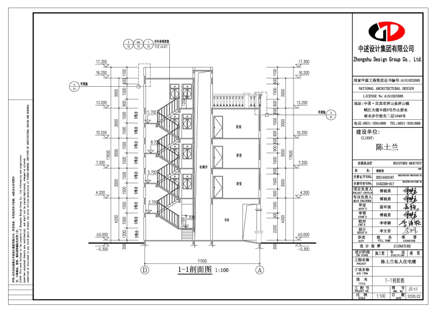
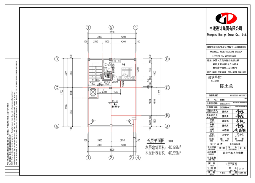
陈土兰申请在三亚市天涯区马岭社区东二街255号权属用地范围内建设私人住宅楼,相关指标为:该私宅用地面积115.66平方米,建筑占地面积96.48平方米,总建筑面积410.83平方米,建筑层数为地上四层、局部五层,建筑高度17.6米(室外地坪至女儿墙高度)。建筑退线要求为:南侧、西侧退用地红线≥0.2米,不得开设门窗、阳台等,做防火墙处理;东侧退道路用地红线≥0.2米,首层做骑楼退建筑控制线1.8米;北侧退用地红线≥1米,门窗应为防火门窗,外墙做防火墙处理。

根据相关规定,现按程序对该项目进行批前公示,公示时间为7个工作日(2026年4月14日至2026年4月22日),如有意见,请于公示结束前反馈,意见反馈方式:

一、电子邮件请发送到:sy88362336@sanya.gov.cn。

二、书面意见请邮寄到:三亚市天涯区凤凰路319号,三亚市自然资源和规划局天涯规划服务中心,邮政编码:572000。

三、咨询电话:88288760,联系人:林玲。

意见反馈请注明联系方式,单位反馈意见并加盖公章。

附件:1.项目区位图

      2.总平面图

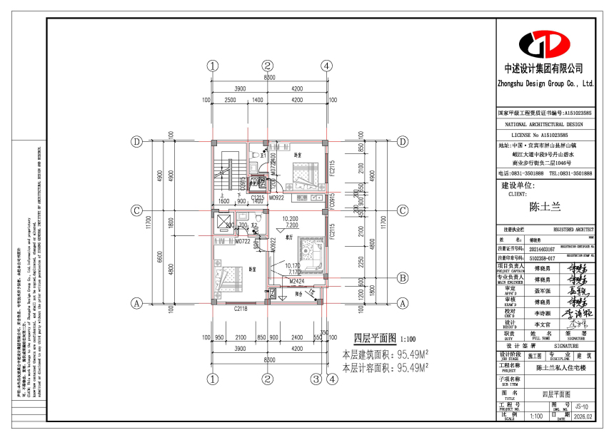
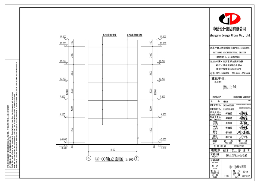
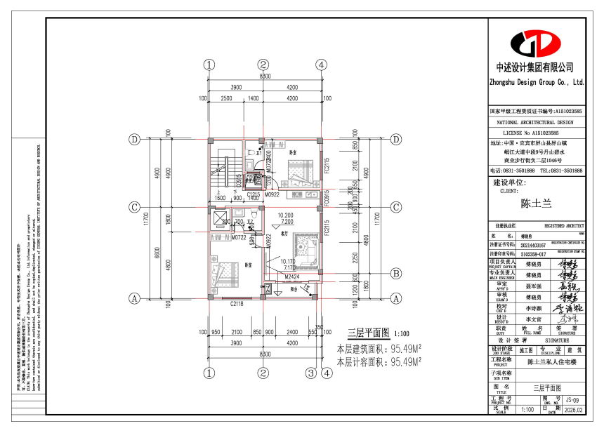
      3.单体图

      4.效果图






























扫一扫在手机打开当前页

版权所有@三亚市自然资源和规划局   中文域名:三亚市自然资源和规划局.政务

主办:三亚市自然资源和规划局   开发维护:三亚市营商环境综合服务中心

ICP备案编号:琼ICP备2025053545号    政府网站标识码:4602000050   琼公网安备琼公网安备 46020302000122号