首页>信息公开>城市规划公示>项目公示>批前公示
项目名称: 关于陈联安位于三亚市吉阳区荔枝沟社区市仔村安置区三巷建设私人住宅楼项目的批前公示
公示开始时间: 2025-11-26 公示结束时间: 2025-12-04
公示来源: 三亚市自然资源和规划局 公示状态:

项目详情

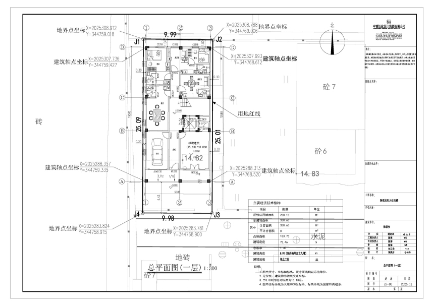
陈联安申请在三亚市吉阳区荔枝沟社区市仔村安置区三巷自用地内建设私人住宅楼一栋,相关指标为:该私宅用地面积为250.00平方米,建筑占地面积为183.76平方米,总建筑面积为350.63平方米,全计容面积为350.63平方米,建筑层数为地上二层,建筑高度8.9米(室外地坪至女儿墙高度)。建筑退线要求为:东、西侧退用地红线最小距离0.30米;南侧退用地红线最小距离4.43米,首层做退建筑控制线1.80米的骑楼;北侧退用地红线最小距离1.00米;东侧不得开设门窗、阳台等,并做防火墙处理,未尽说明事宜详见总平面图。

根据有关规定,现按程序对该项目总平面图、效果图进行批前公示,公示时间为7个工作日(2025年11月26日至2025年12月4日)。如需听证或对上述私人住宅楼建设有异议,请于公示结束前反馈,意见反馈方式:

一、电子邮件请发送到:sy88362336@sanya.gov.cn;

二、书面意见请邮寄到:三亚市吉阳区吉阳大道218号A1栋401室,三亚市自然资源和规划局吉阳分局,邮政编码:572000;

三、咨询电话:88712568,联系人:李盛。

意见反馈请注明联系方式,单位反馈意见并加盖公章。

附件:1.项目区位图

      2.效果、总平面、立面图












扫一扫在手机打开当前页

版权所有@三亚市自然资源和规划局   中文域名:三亚市自然资源和规划局.政务

主办:三亚市自然资源和规划局   开发维护:三亚市营商环境综合服务中心

ICP备案编号:琼ICP备2025053545号    政府网站标识码:4602000050   琼公网安备琼公网安备 46020302000122号