首页>信息公开>城市规划公示>项目公示>批前公示
项目名称: 关于三亚市吉阳区瑞海花园(玫瑰园)3幢4单元外立面加装电梯的批前公示
公示开始时间: 2025-10-10 公示结束时间: 2025-10-17
公示来源: 三亚市自然资源和规划局 公示状态:

项目详情

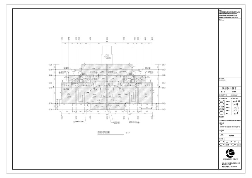
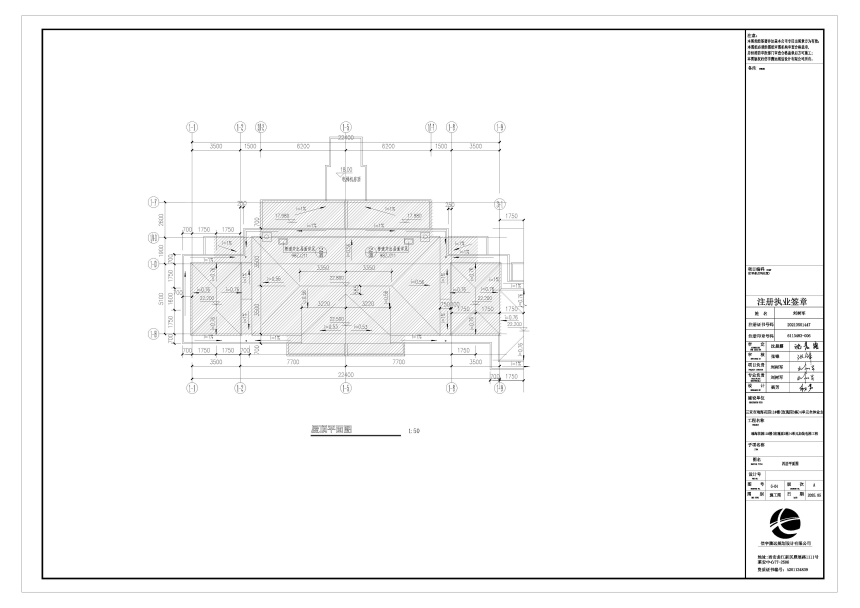
瑞海花园小区位于市吉阳区凤凰路,现该小区玫瑰园3幢4单元业主为方便出行使用,申请在住宅楼加装1部电梯。电梯占地面积5.40平方米,电梯总建筑面积56.28平方米(其中轿厢面积27.00平方米,电梯与建筑主体间电梯厅面积29.28平方米),电梯高度18.00米(详见附图)。

根据相关规定,现按程序对该项目进行批前公示,公示时间为7个工作日(2025年10月10日至2025年10月17日),如需听证或对该项目有意见,请于公示结束前反馈,意见反馈方式:

一、电子邮件请发送到:sy88362336@sanya.gov.cn;

二、书面意见请邮寄到:三亚市河东路152号,三亚市自然资源和规划局建设工程科,邮政编码:572000;

三、咨询电话:88271879,联系人:杨传俊。

意见反馈请注明联系方式,单位反馈意见并加盖公章。

附件:1.项目区位图

      2.总平面图

      3.单体图

      4.效果图
























扫一扫在手机打开当前页

版权所有@三亚市自然资源和规划局   中文域名:三亚市自然资源和规划局.政务

主办:三亚市自然资源和规划局   开发维护:三亚市营商环境综合服务中心

ICP备案编号:琼ICP备14000806号-1    政府网站标识码:4602000050   琼公网安备琼公网安备 46020302000122号