首页>信息公开>城市规划公示>项目公示>批后公告
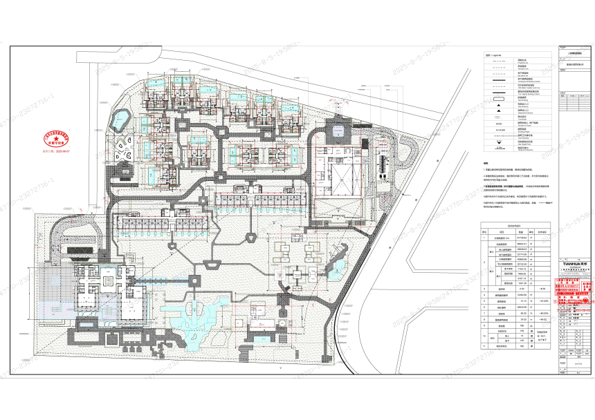
项目名称: 三亚湾瑞吉度假酒店批后公示
公示开始时间: 2026-02-11 公示结束时间: 2026-03-11
公示来源: 三亚市自然资源和规划局 公示状态:

项目详情










扫一扫在手机打开当前页

版权所有@三亚市自然资源和规划局   中文域名:三亚市自然资源和规划局.政务

主办:三亚市自然资源和规划局   开发维护:三亚市营商环境综合服务中心

ICP备案编号:琼ICP备2025053545号    政府网站标识码:4602000050   琼公网安备琼公网安备 46020302000122号